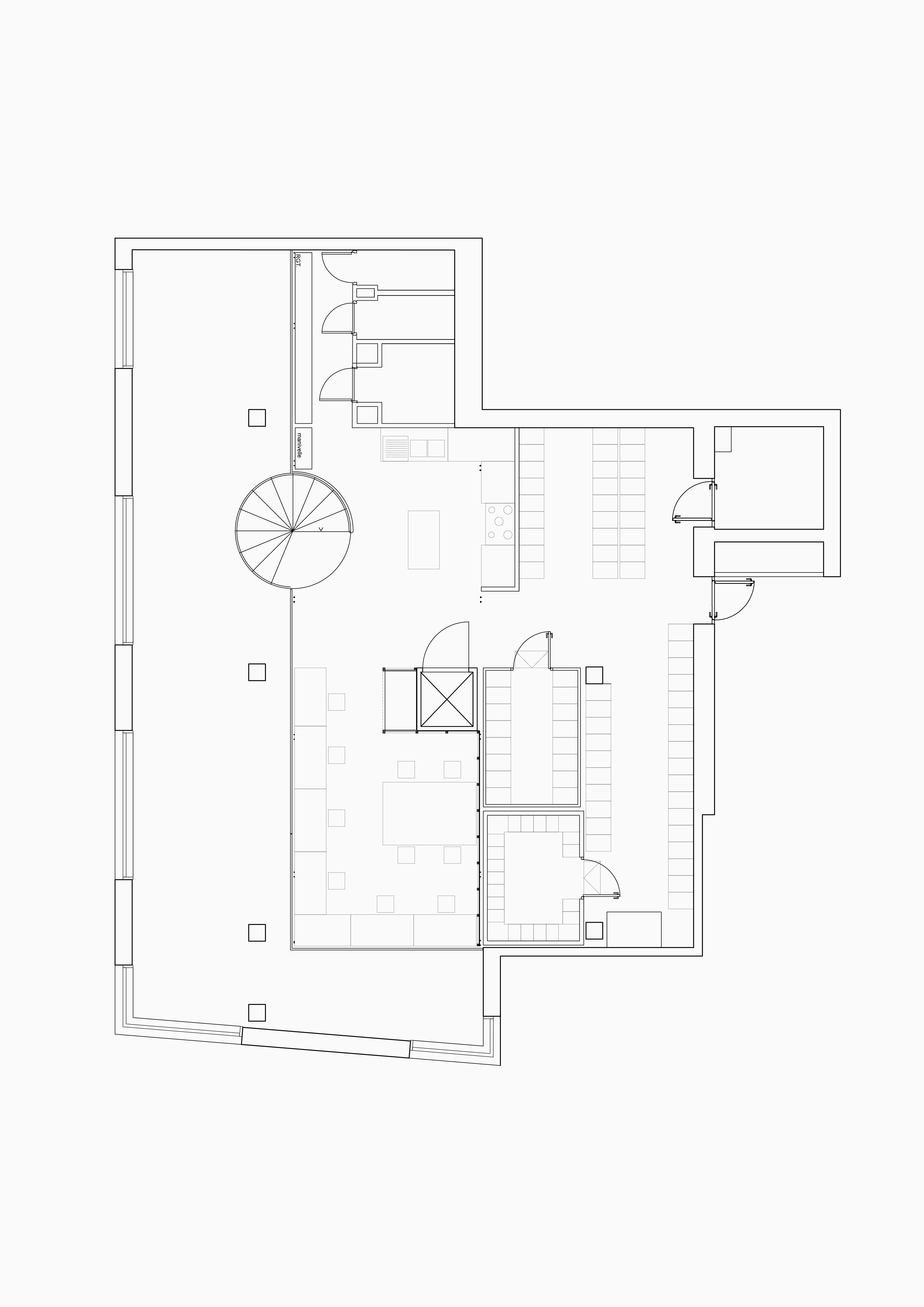
Espace de travail, Genève (CH)           

Projet : Aménagement d’un espace de travail  
Lieu : Genève, Suisse 
Surface : 40 m2
Calendrier : 2019-2020
Photographies : Gaëtan Clochey︎︎︎